




Funktionen und Details


Stabile und elegante Doppelgarage aus Holz für zwei Fahrzeuge und vieles mehr. Die Doppelgarage ist ideal geeignet, um Ihr Auto, Motorrad, Fahrräder und vieles mehr geschützt unterzustellen. In dem separaten Raum können Gartengeräte, Werkzeuge und vieles mehr gelagert werden. Die Doppeltür bietet einen einfachen Zugang für Ihre Fahrzeuge. Das Garagendach ist Teil des modernen Designs, die drei Fenster unterhalb des Daches sorgen tagsüber für viel Licht in der Garage. Dachpappe ist nicht im Lieferumfang enthalten! Modularo® ist eine moderne Lifestyle-Marke, die haltbare und qualitativ hochwertige Produkte aus solidem Holz und im modernen Design bietet, um Ihr Gartenleben noch reichhaltiger und angenehmer zu machen.
Produktspezifikationen
-
TürtypSingle hinged door
-
MaterialNordische Fichte (Picea Abies)
-
FarbeDunkelgrau
-
Dach-/Neigungswinkel (⁰)13.9
-
Wandplattendicke (mm)44
-
Seitenhöhe (m)2.28
-
ProduktnummerWC165111
-
Dachplattendicke (mm)18
-
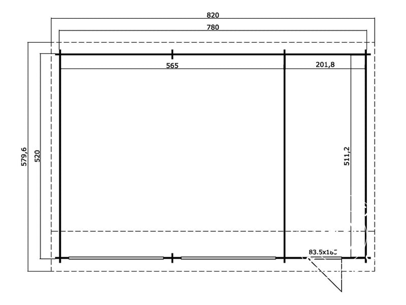
Außenlänge (m)5.8
-
Außenbreite (m)8.2
-
Dachüberstand (cm)20
-
Innenlänge (m)5.112
-
Innenbreite (m)7.668
-
Gewicht (kg)2381
-
Firsthöhe (m)3.21
-
Seitenplattendicke (mm)44
- Offene Doppelgarage/Carport ohne Türen
- Massives 44 mm nordisches Holz
- Abschließbare Tür im Schuppen
- 3 Fenster für Tageslicht in Garage und Schuppen
- Tür 83,5 x 185 cm
- 3 x Dachfenster 150 x 41 cm
- Dachpappe ist nicht im Lieferumfang enthalten!
- Alle Teile vormontiert
- Einfache Montage mit klarer Anleitung
- Montage sollte mit mind. 2 Personen durchgeführt werden
- 39,42 m²
Eine große Doppelgarage aus nordischem Holz bietet Ihnen einen geschützten Raum zum Parken Ihrer Fahrzeuge. Im integrierten Schuppen können Sie ihr Gartenzubehör und Werkzeug griffbereit lagern – Gartengeräte, Rasenmäher, Grill, Spielzeug, Poolzubehör, Kissen für die Terrasse und vieles mehr. Die Tür des Schuppens ist abschließbar. Die zwei großen Doppeltüren machen es einfach, Ihre Autos geschützt unterzustellen.
Hochwertige Holzgarage aus massivem 44 mm robustem, nordischem Holz. Da das Holz in den kälteren Regionen Europas langsam wächst, besteht Ihre Garage aus einem sehr stabilen, robusten und langlebigen Material, welches bei entsprechender Pflege lange hält. Die Holzgarage verfügt über ein klassisches Schrägdach, damit sich kein Wasser darauf ansammelt. Bitte beachten - Dachpappe ist nicht im Lieferumfang enthalten! Die 3 Fenster an der Vorderseite sorgen tagsüber für viel natürliches Licht im Inneren der Garage.
Die Holzgarage wird als vorgefertigtes Montageset geliefert. Wir empfehlen, dass Sie den Aufbau mindestens zu zweit erledigen, es sind jedoch keine speziellen Werkzeuge erforderlich. Folgen Sie einfach der ausführlichen Aufbauanleitung. Wenn Sie sich für eine Garage aus Naturholz entschieden haben, empfehlen wir Ihnen, diese mit einer Holzlasur zu behandeln. Haben Sie Fragen zu unseren Holzgaragen und anderen Produkten? Bitte kontaktieren Sie unsere Experten telefonisch, per E-Mail oder nutzen Sie unseren Chat.
Modularo® ist eine moderne Lifestyle-Marke, die sich auf eine hohe Qualität, Komfort und Robustheit spezialisiert hat. Die Marke bietet Ihnen eine große Auswahl an langlebigen Holzprodukten, wie z. B. Gartenpavillons, Schuppen und Gartenhäuser, die Ihr Gartenleben langfristig noch besser und angenehmer machen. Die Marke überzeugt durch ein elegantes Design, Funktionalität und Platz zum Leben.
- Bei starkem Wind liegt es in Ihrer Verantwortung, das Zelt angemessen zu sichern und zu verhindern, dass es Materialien und Personen verletzt.
- Wenn es schneit, besteht die Gefahr, dass sich Schnee auf dem Dach Ihres Zeltes ansammelt. Schwerer Schnee kann dafür sorgen, dass das Zelt einstürzt. Es liegt in Ihrer Verantwortung, den Schnee von Dach Ihres Zeltes zu entfernen und Ihr Zelt vor Schäden zu bewahren.
- Bitte versichern Sie sich, dass Ihr Zelt vollständig trocken ist, bevor sie es abbauen und verpacken. Auf diese Weise vermeiden Sie Schimmel und Pilzbefall.
- Packen Sie Ihr Zelt nicht bei Temperaturen unter null Grad ein oder aus.
- Verwenden Sie kein offenes Feuer und keine Schweißausrüstung oder andere Zündquellen innerhalb oder außerhalb des Zeltes.
- Bitte beachten Sie, dass die Garantie von Dancover nur für die gewöhnliche Verwendung des Produkts in Übereinstimmung mit den schriftlichen Anweisungen in Ihrer Bedienungsanleitung gilt. Die Garantie deckt nicht die normale Abnutzung ab. Darüber hinaus deckt sie keine Schäden, Verschleiß, Defekte ab, die durch falschen Gebrauch, mangelhafte Wartung, Missbrauch, unerlaubte Modifikation oder der Nutzung unter schlechten Wetterbedingungen verursachten werden.
- Wir empfehlen Ihnen, zu prüfen, ob Ihr Zelt durch Ihre Hausratversicherung abgedeckt ist.
Doppelgarage, Carport aus Holz Vaasa, 7,8x5,2x3,21m, 44mm, Dunkelgrau
Funktionen und Details







